Energia avastuskeskus
Asukoht
Põhja pst 29 ja osaliselt Põhja pst 31, Tallinn
Pindala
3840 m2
Staatus
Valmis 2014
Tellija
Tallinna Tehnika- ja Teaduskeskus
Arhitektuur ja sisearhitektuur
LUMIA , studio ARGUS ja Doomino Arhitektid
Margit Aule, Sander Aas, Margit Argus ja Pelle-Sten Viiburg
Fotod
Arno Mikkor, Mae Köömnemägi ja Martin Siplane
Auhinnad
2015 - Eesti Sisearhitektide Liidu aastapreemia 2014–2015 parima ajaloolise interjööri eest
2015 - Eesti muuseumide aastaauhinnad: Muinsuskaitseameti ja Muuseuminõukogu muinsuskaitse komisjoni 2014. aasta eripreemia muuseum-kultuurimälestise restaureerimise eest
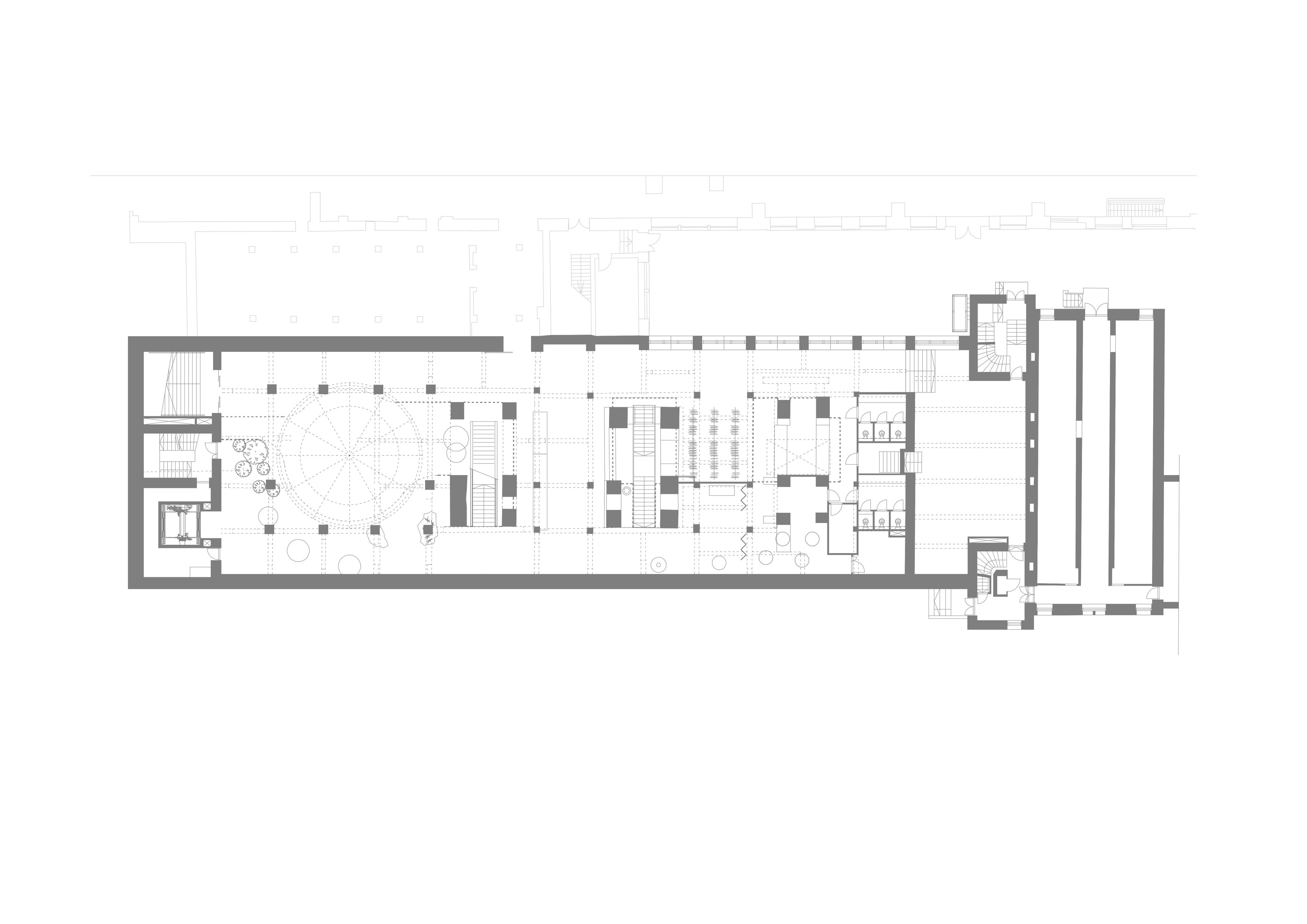
Energia avastuskeskus Tallinna vanalinna ja mere vahel asub endises Tallinna elektrijaama kompleksis ja moodustab ühtse terviku Kultuurikatlaga. Täpsemalt paikneb avastuskeskus 1920.–1930. aastatel jaama laiendamise käigus rajatud turbiini- ja lülitushoones, mille projekteeris tuntud eesti arhitekt Eugen Habermann. Elektri tootmine lõpetati jaamas 1979. aastal.
Selles hoones tegutseb 1999. aastast Energia avastuskeskus, kus on seitse püsinäitust energia, klassikalise füüsika, heli, optika ja muudel teemadel, mida avatakse külastajatele enam kui saja interaktiivse eksponaadi abil.
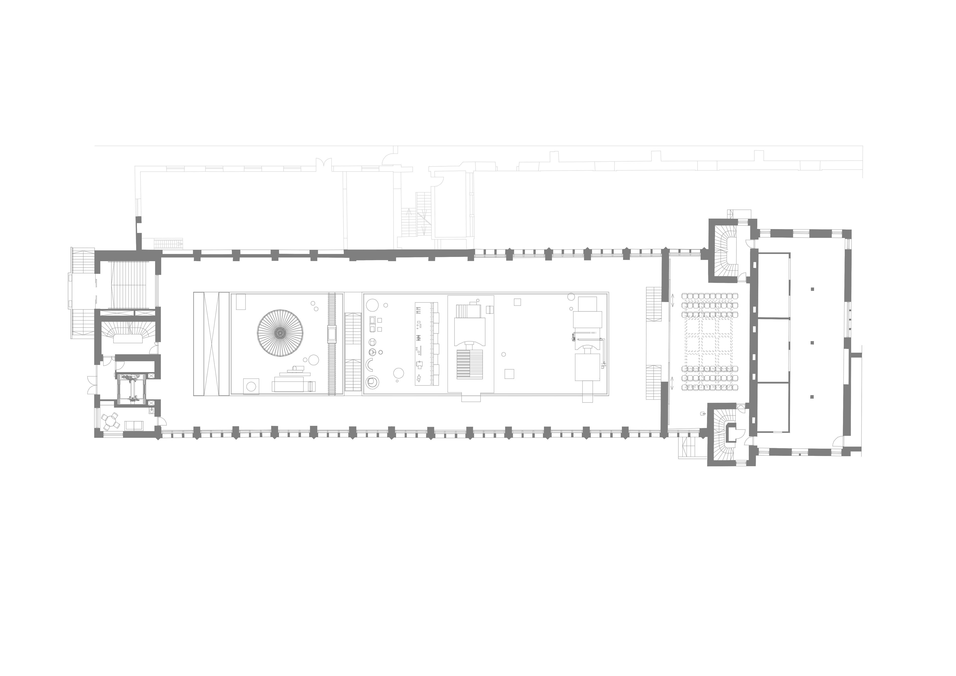
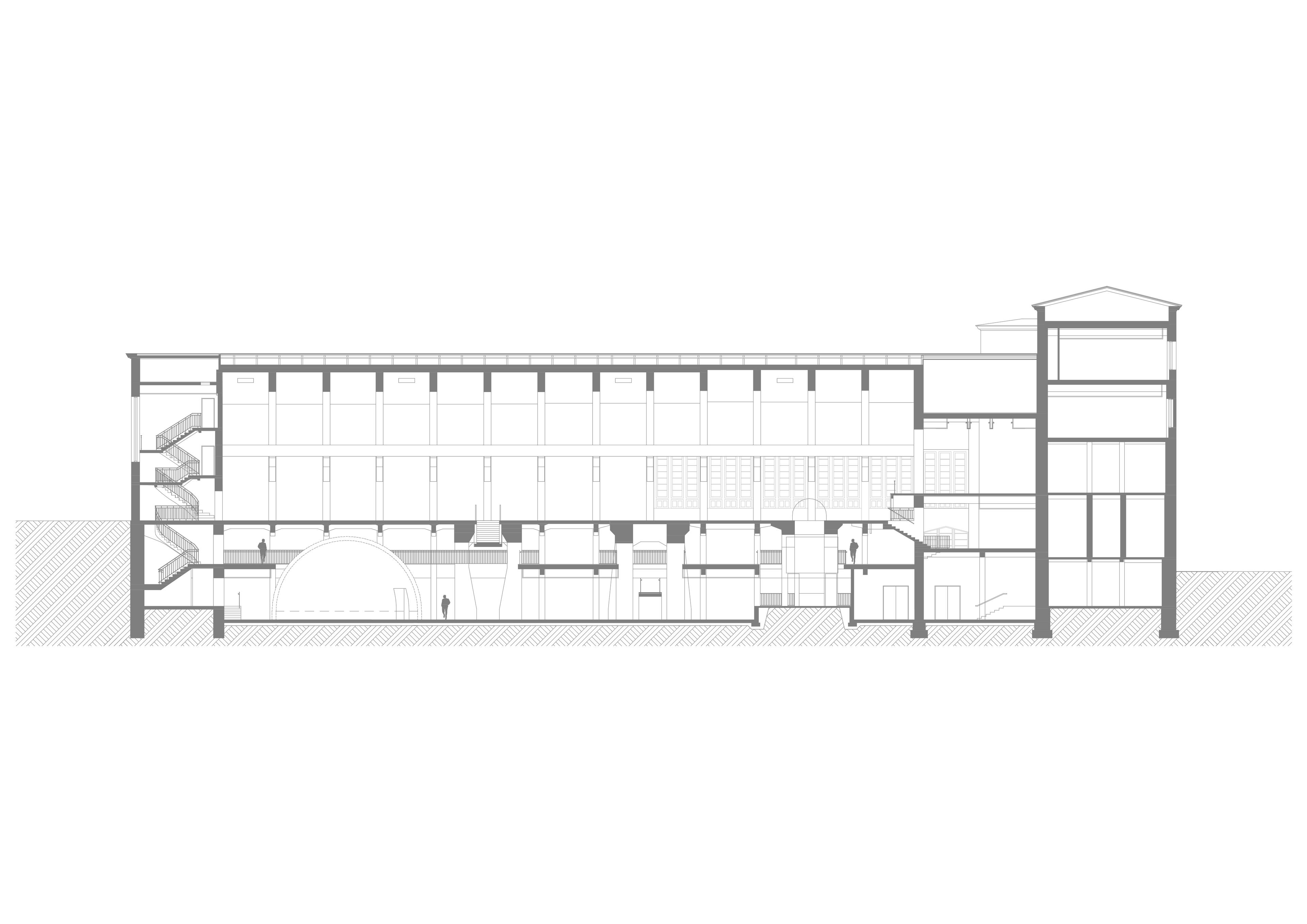
Avastuskeskuse hoone koosneb mitmest mahust, millest keskne on Põhja puiestee äärne funktsionalismi ja art déco elemente ühendav turbiinisaal. Sellest, tervet hooneosa hõlmavast saalist ida poole jääb neljakorruseline funktsionalistlik lülitushoone.
Võimsa turbiinisaali renoveerimisprojektis on keskendutud ajaloolise ruumimõju taastamisele. Ruumi keskele vanu turbiine markeeriva platvormi peale on koondatud elektrienergiast kõnelevad eksponaadid, mis koos säilinud vanade masinatega moodustavad ühe terviku. Kõrge lae ja heledate seinte koosmõjul tekib ruumis teadustempli aura.
Turbiinisaali all on kaheks korruseks jaotatud 6 meetri sügavune kelder, mille uus arhitektuurilahendus on oma julgema vormikäsitluse, geomeetria ja kirkamate värvidega märgatavalt mängulisem ja teaduskesksem, kuigi ka siin leiab viiteid hoone industriaalsele pärandile: näiteks haljas betoon ja ajaloolistele käsipuudele viitava kujundusega metallpiirded. Ülemine keldrikorrus on taastuvenergia teemast tulenevalt valge-roheline; alumine, heli ja optika korrus aga mängib julgelt kollase ja musta graafikaga muidu valges ruumis. Läbi avatud korruste tekitavad optiliste ja heliliste interaktiivsete eksponaatide vahel põnevaid raamitud vaateid ülakorruse turbiine toetavad võimsad betoonpostid.










Margit Aule
Partner / volitatud arhitekt-ekspert (tase 8) / volitatud sisearhitekt (tase 7)